Tarjeta Naranja
A triple-height cascade void connects three levels of Tarjeta Naranja's corporate offices in Córdoba, turning vertical circulation into the social and functional heart of the project.

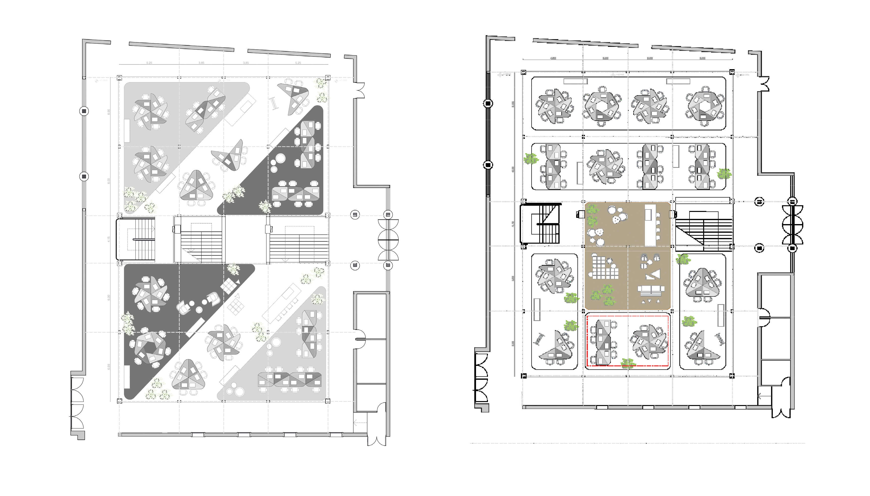
The project is built on a clear premise: to create a workplace where exchange between people becomes the true driver of space. Versatility is not an added feature—it is the principle that organises every design decision.
A cascade-shaped triple-height void links the building's different levels into a continuous system. The staircase that runs through it operates as an identity element: recognisable, functional, and capable of unifying the entire space under a single spatial logic. Furniture modules follow that same logic, allowing reconfigurations to suit shifting needs throughout the day.
The space proposes a progressive democratisation of work: as levels connect, dialogue between teams becomes structural. Those who inhabit these offices find an environment that responds equally to focused individual work and spontaneous collaboration.
Spanning 1,025 m² in Córdoba, developed in collaboration with MTH, the project integrates leisure, meeting, and work into a single coherent spatial sequence.











No items found.
No items found.